Продам новый 2-этажный дома (№ 22-367-888)
Ціна: 230 000 $

Характеристики
Ціна: | 230 000 $ |
---|---|
№ об'єкта: | 22-367-888 |
Тип: | будинок |
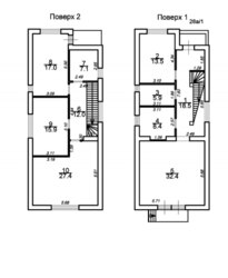
Поверхів: | 2 |
Спалень: | 4 |
Площа будинку: | 158 м2 |
Ділянка: | 3,5 сот |
Адреса: Одеська, Одеса, Київський, Таирова, Шишкина
Продам новый дом в Киевском районе на Куприна возле фитнес клуба Затерянный мир.
Рядом Костанди /Шишкина
Супермаркет Таврия Вузовский через дорогу.
10я Фонтана кафе Маман и Сильпо 5 минут на авто.
Приличный размер участка
3,5 сотки.
Есть передний двор для авто и задний двор с зоной отдыха и
уличным джакузи.
1й эт :кухня-студия, бойлерная,санузел,спальня
2й эт:ванная,3 раздельные спальни,балкон
Очень разумная планировка,
общая площадь почти 160м
Дом введён в эксплуатацию и земля с госактом.
Свои налоги продавец платит.