Роскошный дом для вашей семьи (№ 22-370-118)
Ціна: 400 000 $

Характеристики
Ціна: | 400 000 $ |
---|---|
№ об'єкта: | 22-370-118 |
Тип: | будинок |
Поверхів: | 3 |
Спалень: | 10 |
Площа будинку: | 420 м2 |
Ділянка: | 8.5 сот |
Адреса: Одеська, Одеса, Київський, Таирова, Костанди
К вашему вниманию потрясающий дом в средиземноморском стиле.Расположен в нескольких минутах ходьбы от моря.Улица Костанди.Очень удобное расположение.Рядом одна из лучших частных школ в Одессе,магазин Сантим,рынок,рестораны, салоны красоты,вся транспортная развязка рядом.
Это великолепное имущество предлагает общую площадь 420кв.м ,разделенную на 3 этажа и функциональный подвал.
Пространство дома уже поделено на удобные,просторные комнаты.
Много света.
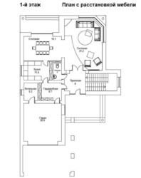
1 эт: просторная гостиная, с панорамными окнами.Кухня,отдельная столовая, со своим выходом на терассу и к бассейну.
Высота потолков в гостиной -9м.
Очень красивый лестничный пролет с большим окном.
Гардероб, санузел,гараж на две машины(31кв.м),котельная.
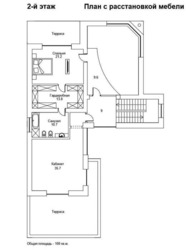
2эт: 2 спальни или спальня+кабинет.Каждая комната имеет свою терассу(30кв.м и 11кв.м).
Большая гардеробная(11кв.м),санузел.
3эт: 2детские комнаты(23кв.м и16кв,м),большая комната отдыха или игровая(37кв.м),гардероб(12кв.м),санузел.И шикарная терасса,с которой открывается прекрасный вид(45кв.м).
подвал: несколько удобных кладовых для хранения вещей,сауна,спортивный зал, либо комната отдыха.
Участок 8,5соток.
Имеется бассейн.
Состояние дома-от строителей.
Прекрасная цена и возможность создать собственное пространство на свой вкус.