Продаж квартир в ЖК Аквамарин (№ 213-020-109)

Ціна: 57 000 $
Характеристики
Ціна: | 57 000 $ |
---|---|
№ об'єкта: | 213-020-109 |
Кімнат: | 2 розд |
Поверх: | 18 / 22 ліфт |
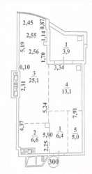
Площа: | 80 / - / 18 м2 |
Санвузол: | 1 сумісний |
Додатково: | новобудова |
Адреса: Одеська, Одеса, Київський, Фонтан, Фонтанская дорога
Маємо в продажу чотири варіанти квартир в зданому комплексі Аквамарин.
Дві Квартири 60 кв.м. розташовані на пʼятнадцятому поверсі і можуть бути обʼєднані в одну.
Одна квартира 80 кв.м. на вісімнадцятому поверсі
і одна 60.1 кв.м. на девʼятнадцятому.