55000$ Продам 2-х комнатную квартиру в ЖК Аквамарин. Пляж Золотой Берег. (№ 213-118-659)

Ціна: 55 000 $
Характеристики
| Ціна: | 55 000 $ |
|---|---|
| № об'єкта: | 213-118-659 |
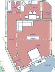
| Кімнат: | 2 розд |
| Поверх: | 18 / 25 ліфт |
| Площа: | 65 / - / 12 м2 |
| Санвузол: | 2 роздільний + сумісний |
| Додатково: | новобудова |
Адреса: Одеська, Одеса, Київський, Фонтан, Фонтанская дорога
Дом сдается в 2026 году.
18 этаж - вид на море.
Переуступка пая.
850 $ за м2






