62000$ Черемушки! 2-комн квартира в Пространстве на Радостной (№ 213-126-560)
Ціна: 62 000 $

Радостная ул., Одеса, Одеська, Хаджибейський, Черемушки
Характеристики
| Ціна: | 62 000 $ |
|---|---|
| № об'єкта: | 213-126-560 |
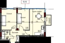
| Кімнат: | 2 розд |
| Поверх: | 9 / 12 ліфт |
| Площа: | 56 / - / 18 м2 |
| Санвузол: | 1 сумісний |
| Додатково: | новобудова |
Опис
В продаже отличный вариант 2х комн квартиры в современном новом жилом комплексе на Черемушках - Пространство на Радостной.
Функциональная планировка, квартира светлая, с панорамными окнами. С кухни выход на балкон. Окна выходят в сторону ул. Генерала Петрова. Выполнен черновой ремонт: электрика, сантехника, натяжной потолок, стены окрашены.











