120000$ Дом сдан! Продам 3-комнатную квартиру в ЖК 66 Жемчужина, Краснова (№ 213-132-882)
Ціна: 120 000 $

Краснова ул., Одеса, Одеська, Хаджибейський, Ипподром
Характеристики
| Ціна: | 120 000 $ |
|---|---|
| № об'єкта: | 213-132-882 |
| Кімнат: | 3 розд |
| Поверх: | 8 / 24 ліфт |
| Площа: | 112.6 / - / 30 м2 |
| Санвузол: | 2 роздільний |
| Додатково: | новобудова |
Опис
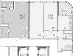
В продаже большая трехкомнатная квартира в ЖК «66 Жемчужина» на Краснова.
Квартира была перепланирована на этапе строительства из однокомнатной и двухкомнатной квартиры в трехкомнатную.
8 этаж из 24.
Общая площадь 112,6кв.м.
Просторная кухня-гостиная 30кв.м с выходом на открытый балкон и отдельно 3 комнаты, из одной спальни также выход на второй большой балкон-террасу 7кв.м!
Из окон открывается потрясающий вид на город, ипподром и море!
Состояние от строителей.
Дом сдан! Можно начинать делать ремонт.










