57000$ Продам квартиру в ЖК Атмосфера. Аркадія. (№ 213-140-185)

Ціна: 57 000 $
Характеристики
Ціна: | 57 000 $ |
---|---|
№ об'єкта: | 213-140-185 |
Кімнат: | 1 розд |
Поверх: | 2 / 25 ліфт |
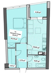
Площа: | 46 / - / 14 м2 |
Санвузол: | 1 сумісний |
Адреса: Одеська, Одеса, Приморський, Аркадия, Курортный пер.
ЖК Атмосфера Аркадия Ул Генуэзская / Курортный переулок
Квартира выплачена, есть возможность продажи по переуступке. - 5 секция , 2 этаж - Площадь 45.94 м2 - Вид на Курортный переулок $ 57 000 ЖК Атмосфера - в 5 минутах от моря -бассейн на территории -2-х уровневый подземный паркинг -лаунж-зоны на террасах и во дворе - детский центр, фитнесс-клуб, СПА, салон красоты, кафе, кондитерская, отделение почты, банка, аптека, химчистка, коворкинг.