55000$ Продам 2-комнатную квартиру. Ремонт, новая мебель. Аркадия (№ 213-169-330)

Ціна: 55 000 $
Характеристики
Ціна: | 55 000 $ |
---|---|
№ об'єкта: | 213-169-330 |
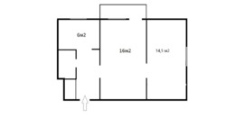
Кімнат: | 2 суміж |
Поверх: | 3 / 5 |
Площа: | 41.6 / - / 6 м2 |
Санвузол: | 1 сумісний |
Адреса: Одеська, Одеса, Приморський, Средний Фонтан, Фонтанска дорога
Продам 2 комнатную квартиру , морская сторона, второй ряд от дороги , тихое место , Приморский район, улица Фонтанская дорога, ориентир остановка транспорта улица Петрашевского, пляж Аркадия в пешей доступности Расположена на 3-ем этаже,5-ти этажного дома красный кирпич и ракушняк толстые стены ЮГО-ВОСТОК Метраж 41, 6 296, СОСТОЯНИЕ КВАРТИРЫ , после капитального ремонта , трубы канализация , водопровод , плитка в кухне , плитка на полу , двери в спальне и сан узле , новые радиаторы по всей квартире , полы доска лиственница под лаком , натуральное дерево , окна мп , обои флизелиновые метровые , кухня крем верх а низ капучино
стиральная машина БОШ Германия , Шкаф купе , кровать дерево , матрас ортопедический размер 2 метра на 1 , 60 все новое