130000$ Трехкомнатная квартира в новом доме ВИНДЗОР (№ 213-169-411)
Ціна: 130 000 $

Заславского (Бориса Литвака), Одеса, Одеська, Приморський, Центр
Характеристики
| Ціна: | 130 000 $ |
|---|---|
| № об'єкта: | 213-169-411 |
| Кімнат: | 3 розд |
| Поверх: | 6 / 10 ліфт |
| Площа: | 75.7 / - / 28 м2 |
| Санвузол: | 2 роздільний + сумісний |
| Додатково: | новобудова |
Опис
Эта квартира расположена в красивом, качественном доме ВИНДЗОР (премиум сегмент), на ул.Бориса Литвака в центре Одессы.
Рядом парки, школы, садики, магазины, хорошая транспортная развязка.
Дом сдан. Многие квартиры заселены.
Квартира расположена на 6 этаже 10-ти этажного дома.
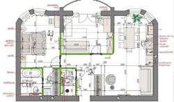
Площадь квартиры 75,7 кв. метров. В квартире запланированы две спальни и просторная кухня-гостинная. Высота потолка 3 метра. Двухконтурный газовый котел.
Состояние от строителей. Есть предварительный дизайн-проект. Картинки интерьера из него.
Квартира распланировна: Холл с гардеробной, гостевой санузел, кухня – гостиная 27 кв.м, мастер-спальня 15 кв.м с гардеробной и своим санузлом, детская 14,5 кв.м с балконом.
Дом построен из эффективного красного кирпича, толщина внешних стен 70 сантиметров, немецкий металлопрофиль на окнах, две линии подключения электричества (ОТСУТСТВИЯ СВЕТА НЕТ), баки с запасом воды на 2-3 суток.
Дом малоквартирный, на этаже по 4 квартиры.
Пол и лестницы в парадных выполнены из гранита.
Европейская система кондиционирования.
Видеонаблюдение и охрана.
лифт SHINDLER (Австрия)
Красивая, благоустроенная территория. Квартира очень светлая. Хороший вид из окна.
Есть готовый проект для ремонта.














