68000$ Продам 3-х кімнатну квартиру в 20 хв. від моря (№ 213-175-667)

Ціна: 68 000 $
Характеристики
Ціна: | 68 000 $ |
---|---|
№ об'єкта: | 213-175-667 |
Кімнат: | 3 розд |
Поверх: | 1 / 1 |
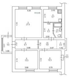
Площа: | 77.6 / 46.4 / 6.7 м2 |
Санвузол: | 1 сумісний |
Адреса: Одеська, Одеса, Матросова пер.
Провулок Валерія Лобановського пров. (Олександра Матросова)
Продаж 3-х кімнатної квартири на 1му поверсі одноповерхового будинку, загальною площею 77,6 кв.м.,житловою площею 46,4 кв.м., кухня 6,7 кв.м.,
Жилий стан (потребує ремонту), зручне планування, кімнати роздільні, висота стелі більше 3м., санвузол сумісний, є підвал під квартирою.
Стіни товсті, взимку тепло, влітку прохолодно,
Комунікації: електрика, каналізація центральна, холодне водопостачання центральне, газ,опалення індивідуальне (газовий котел).
Є свій двір біля квартири, паркомісце.
Розвинена інфраструктура: поруч аптеки, магазини,ТЦ, школа, дитячий садочок, заклади вищої освіти, зручна транспортна розв’язка, до моря пішки 20 хв.
Вартість квартири 68 000уе з торгом