Головна >> Продаж квартир >> Об'єкт №213216702

28000$ Однокімнатна квартира. Гостинка на 7ст. фонтана.  (№ 213-216-702)

28000$  Однокімнатна квартира. Гостинка на 7ст. фонтана. фото 1

Ціна: 28 000 $

Характеристики

Ціна: 28 000 $
№ об'єкта: 213-216-702
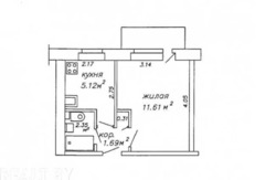
Кімнат: 1 розд
Поверх: 5 / 9 ліфт
Площа: 22 / - / 5 м2
Санвузол: 1 сумісний

Адреса: Одеська, Одеса, Приморський, Средний Фонтан, Педагогическая ул.

Продажа для орендного бізнесу або проживання 1-кімнатна квартира готельного типу, 5 поверх 9-поверхового будинку. Район 7-ї станції Фонтанської дороги, вул. Педагогічна u002F пров. Полуничний. Цегляний будинок, броньовані двері, на підлозі ламінат, натяжні стелі, новий бойлер на 80 літрів, пральна машина, холодильник, мікрохвильова піч, кондиціонер, проведено оптоволоконний інтернет. У санвузлі плитка, великий засклений балкон, охайний житловий стан. Море — у пішій доступності. У квартирі за домовленістю залишається всі меблі та техніка, як видно на фото. До Аркадії пішки алеєю до моря — 13 хвилин.

Об'єкт на карті

Замовити зворотній дзвінок