69500$ Продам 3комнатную квартиру. ЖК Манхэттен, дом сдан (№ 213-256-418)
Ціна: 69 500 $

Филатова, Одеса, Одеська, Хаджибейський, Черемушки
Характеристики
| Ціна: | 69 500 $ |
|---|---|
| № об'єкта: | 213-256-418 |
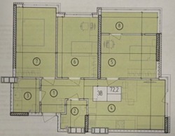
| Кімнат: | 3 розд |
| Поверх: | 5 / 25 ліфт |
| Площа: | 71 / - / 20 м2 |
| Санвузол: | 2 |
| Додатково: | новобудова |
Опис
Продам полноценную большую 3 комнатную квартиру + зал/студио с 2-мя санузлами, площадью 71 кв.м., на 5 этаже с панорамными окнами в новом, сданном ЖК Манхэттен на Академика Филатова 2 шикарный район с развитой инфраструктурой и не далеко от моря. Дом введен в эксплуатацию в 24 году, состояние квартиры-от застройщика+ проложена водяная система отопления «теплый пол» по всей квартире-самый экономный и комфортный тип отопления.











